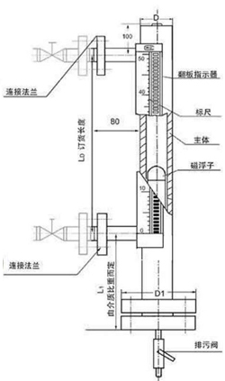
JP-UHC518系列帶遠傳磁翻板液位計根據浮力原理和磁性耦合作用原理工作的。當被測容器中的液位升降時,液位計主導管中的浮子也隨之升降,浮子內的磁鋼通過磁耦合傳遞到現場指示器,驅動紅白翻柱轉180°,當液位上升時,翻柱由白色轉為紅色,當液位下降時翻柱由紅色轉為白色,指示器的紅、白界位處為容器內介質液位的實際高度,從而實現液位的指示。帶遠傳磁翻板液位計配遠傳變送器、報警(控制)開關,將現場數據傳送至二次顯示表或DCS系統。
磁翻板液位計適合容器內液體的液位、界位的測量,指示新穎,讀數直觀、醒目,觀察指示器的方向可根據用戶需要改變角度。測量范圍大,不受儲槽高度限制,指示機構與被測介質隔離,因而密封性好,可靠性高,結構簡單,安裝方便,維護費用低。
一、技術參數:
測量范圍:150~8000mm
(對中心距超過5000mm的或運輸條件不允許超過長度的液位計可采用分段制造)
工作壓力:2.5MPa;4.0MPa;6.3MPa
工作溫度: -20~100℃;-20~200℃;0~400℃
精確度:±10mm
介質密度: 0.5~2.0g/cm3
介質密度差: ≥150kg/m3(測量界位)
環境振動:頻率≤25Hz 振幅≤0.5mm
跟隨速度: ≤0.08m/s
介質粘度: ≤0.4Pa.s,對于粘度大的介質或測量溫度低時易結晶的介質,
可選用加熱夾套型液位計
過程連接:旁路側面安裝法蘭:DN25,PN1.0或PN1.6、PN2.5
法蘭標準:HG20592~20635-97其它法蘭標準請用戶注明。
材質:旁路管:1Cr18Ni9Ti;304;316L
二、帶遠傳磁翻板液位計尺寸圖與安裝示意圖:
![]() |
![]() |
||||||||
三、磁浮子翻板液位計選型表:
| JP-UHC | 磁浮子翻板式液位計 | |||||||
| 代 號 | 顯示方式 | |||||||
| 517 | 就地翻板顯示 | |||||||
| 518 | 就地翻板顯示+4~20mA遠傳 | |||||||
| 代號 | 安裝方式 | |||||||
| 無 | 側裝式 | |||||||
| D | 頂裝式 | |||||||
| 代號 | 液位計類型 | |||||||
| 無 | 基型 | |||||||
| W | 保溫型 | |||||||
| J | 防腐型 | |||||||
| S | 防霜型 | |||||||
| Z | 保溫防腐型 | |||||||
| Y | 頂裝防腐型 | |||||||
| 代號 | 報警控制 | |||||||
| 0 | 無報警 | |||||||
| 1 | 帶上限報警 | |||||||
| 2 | 帶下限報警 | |||||||
| 3 | 帶上下限報警 | |||||||
| 代號 | 浮子材質 | 代號 | 本體材質 | |||||
| P | 不銹鋼 | P | 不銹鋼 | |||||
| L | 防銹鋁 | L | 防銹鋁 | |||||
| T | 鈦 | T | 鈦 | |||||
| S | PVC塑料 | S | PVC塑料 | |||||
| F | 氟塑包裹 | F | 氟塑管 | |||||
| PF | 內襯四氟 | |||||||
| PP | 內襯丙烯 | |||||||
| PE | 內襯乙烯 | |||||||
| 代 號 | 待標明的數據 | |||||||
| B1 | 標注法蘭標準、通徑、壓力等級 | |||||||
| B2 | 標注實際操作溫度 | |||||||
| B3 | 標注實際操作壓力 | |||||||
| B4 | 標注測量介質的密度 | |||||||
| B5 | 標注訂貨長度,或提供法蘭間距 | |||||||









![[list:title]](/uploads/allimg/180721/1-1PH1144922.jpg)

